由于现代货运码头集卡运输货物多又频繁,因此定制卸货平台与集卡进行提高效率、又快速、无缝隙、更稳定的对接装运。在定制安装物流仓库的卸货平台前,需要预留与一个基坑,来防止平台。那客户该如何正确的预留装卸货平台的基坑呢,见下文。

物流仓库卸货平台预留基坑的详细步骤如下
1、明确装卸方式和搬运需求:
确定搬运车辆重量、货物重量、月台高度、以及与集卡的差距,以确定平台能够有效连接月台和集卡,并且满足货物的承重能力,从而实现快速装卸。
2、确定平台尺寸和坑位设计:
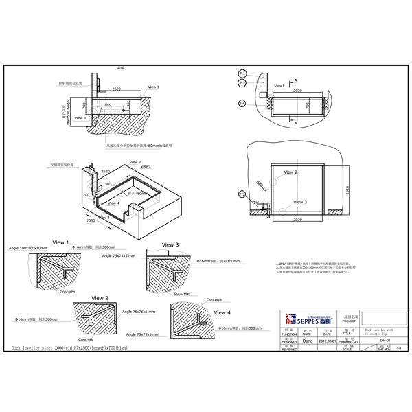
根据上述客户需求,定制适合的卸货平台尺寸,从而设计出适合的坑位尺寸,包括长度、宽度以及深度,确保满足客户的使用需求,平台安装后与地面平齐。
卸货平台的详细坑位图纸可找西朗SEPEPS厂家提供,以确保设计合理和符合安全标准。

3、卸货平台的坑位施工注意点
施工准备:
找到机电工程或建筑公司,根据SEPPES西朗卸货平台厂家提供的坑位图纸进行施工。
确保坑位方正平直,对角线尺寸误差控制在1cm以内。
电源预留:
在坑位内预留电源线位置,准备符合安全标准的电源接线盒。将电源线提前拉近月台控制箱旁,方便日常操作和维护。

西朗SEPPES作为世界500强企业的供应商,在很多项目上对标外资品牌,为客户提供物流仓储装卸4件套物,包括卸货平台、电动提升门、货车限动器、充气门封。西朗SEPPES具备全国100多个服务网点和优质的售后服务,为现代物流码头提供可靠的解决方案。
苏公网安备32050602011995